pmp Architekten
pmp Projekt GmbH pmp Architekten
Über Uns
Profil
Leistungsspektrum
Geschäftsführung
Mitarbeitende
Projekte
Denkmalpflege
Bauen im Bestand
Neubau
Archäologie
Restaurierung
Historische Bauforschung
Wettbewerbe
Aktuelles
Veröffentlichungen
Kontakt
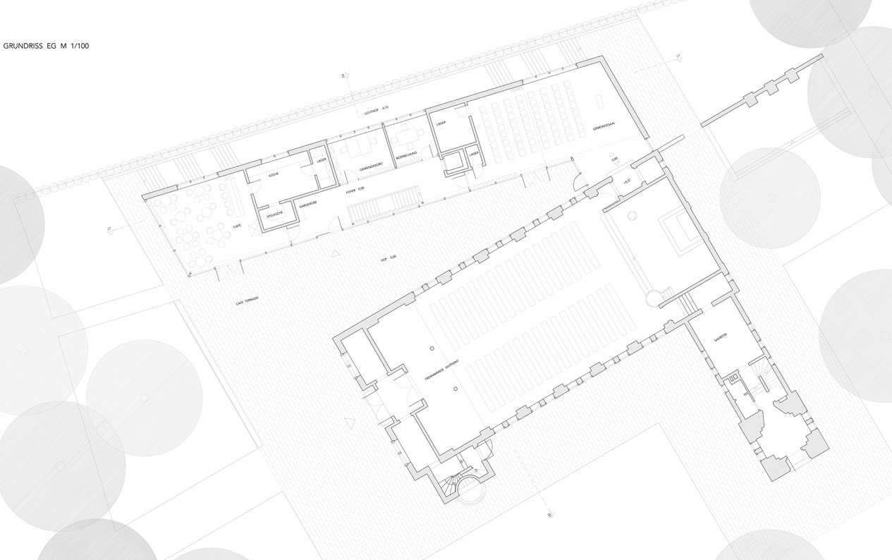
Gemeindehaus Stellingen
Umfang:
Wettbewerb 2017